• 阅读3369
  • 回复23

[家装风格] 八月艰辛,虽然有些许遗憾,但是成功入住混搭现代美式家

 火.. [复制链接]
发表于 2015-5-25 21:52 | 显示全部楼层 |阅读模式
      从进场动工到正式入住,整个装修持续八月有余,从确定监理公司、到选择设计公司、以及敲定施工公司,硬装各个环节的材料选择及购买,软装各个细节的斟酌和打磨,期间经历的林林种种,虽然都有各位专业人士的鼎力相助,但自己耗费的精力也是极大的(这一点,只要您不是图省事的主儿,装修过,应该都能体会,特别是如果几乎是自己一个人在做这件事情,那估计您体会就能和我一样深了
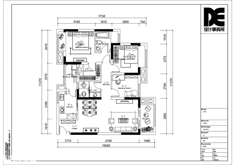
    【户型】三室两厅两卫
    【建筑面积】111平方米
    【套内面积】95平方米(91的计价面积+部分赠送)
    【装修花费】31万(包含从设计费、施工费到软硬装材料费等所有费用

先上户型图
户型.jpg


六安论坛
 楼主| 发表于 2015-5-26 11:04 | 显示全部楼层
    本来不太想发这个帖子,一来是自己累了这么久,有点疲,二来就是第一次独立负责装修,还是有很多经验欠缺的地方,难免有些许遗憾,就不太想发,但是转念想了一下,不管是不是因为我付了钱请他们,但实际为这套房子付出心血的人除了我,还有监理、设计师、施工队,或多或少,都应该对人家的工作成果有一份肯定,所以还是本着和各位分享的态度发这个帖子。
说说楼主大致的装修思路吧。
1、关于户型。
因为买的是现房,所见即所得。当时觉得户型还不错,两三个人住没问题,所以就没打算大改动。
2、关于风格。
在论坛学了一圈,觉得还是混搭美式风格比较入眼。入户的地方没有做整壁鞋柜,因为地方并不大,不太想一进门就感觉很压抑,只能牺牲掉部分实用,多的鞋子在阳台还有个储物柜,应该是够用了,入户就讲究个视觉效果了。
3、关于设计。
我们是找LG的哥们儿装的,楼主对这位兄台的工程施工算是比较肯定。但我俩的喜好那真是天差地远啊,一般二选一,我俩都不会选一样的。楼主又是控制欲超强,所以整个搭配设计软装基本就是自己玩儿了,大家也能看出来的确是非专业水平。
楼主对装修的整体要求就是:简单、温馨,有家的味道(其实就是乱点也不怕)。硬装方面能简单就简单,能少弄就少弄,装的东西少,污染源就少,再好看的设计过几年也会担心乏味。既然不是壕,我情愿将RMB花在自己使用的东东上,比如床垫、水龙头、床品、牙刷,而不是石膏线条、做造型啥的,毕竟房子是用来住的,不是看的嘛。(大家装修消费理念不同,求轻拍哈)
貌似这里应该来张镇楼图。楼主技术太渣,不知道能不能镇住,硬着头皮上吧。
大厅.jpg

六安论坛
回复 鲜花 臭蛋

使用道具 举报

发表于 2015-5-26 13:36 | 显示全部楼层
我只能说楼主你强大,赞一个
六安论坛
回复 鲜花 臭蛋

使用道具 举报

发表于 2015-5-26 14:07 | 显示全部楼层
看着挺不错的~~顶一个~~
六安论坛
回复 鲜花 臭蛋

使用道具 举报

 楼主| 发表于 2015-5-26 16:15 | 显示全部楼层
鞋柜是定制的,本来想着是买成品,结果发现要买个尺寸、样式、实用各方面都满意的成品鞋柜太难了,就在力诚订了,硬线条门框,白色漆,配上了两盏铜色的壁灯,加上亮面花瓶、仿象牙摆件、德国ASA异形碗、白莲花、镀银弯尾雀鸟、宜家灯台等摆件,最重要的是这幅Jasper Johns原版画芯的《Map》,可惜这幅背板有点拱起,无法上墙,只能摆着了,不过看着还是不错。地上的这幅地毯尺寸稍微买的优点小,但是样式、色彩、质感都还是很喜欢。

4.jpg
3.jpg
2.jpg
1.jpg
六安论坛
回复 鲜花 臭蛋

使用道具 举报

 楼主| 发表于 2015-5-27 11:47 | 显示全部楼层
2.1.jpg
六安论坛
回复 鲜花 臭蛋

使用道具 举报

 楼主| 发表于 2015-5-27 11:50 | 显示全部楼层
2.2.jpg
六安论坛
回复 鲜花 臭蛋

使用道具 举报

 楼主| 发表于 2015-5-27 11:52 | 显示全部楼层
2.3.jpg
六安论坛
回复 鲜花 臭蛋

使用道具 举报

 楼主| 发表于 2015-5-27 11:57 | 显示全部楼层
2.4.jpg
六安论坛
回复 鲜花 臭蛋

使用道具 举报

 楼主| 发表于 2015-5-27 11:59 | 显示全部楼层
2.5.jpg
六安论坛
回复 鲜花 臭蛋

使用道具 举报

您需要登录后才可以回帖 登录 | 立即注册

本版积分规则

侵权举报:本页面所涉内容为用户发表并上传,相应的法律责任由用户自行承担;本网站仅提供存储服务;如存在侵权问题,请权利人与本网站联系删除!举报微信号:点击查看