登录
/
注册
全站首页
社区论坛
设为首页
客户端
扫码下载客户端
官方微信
打开微信扫一扫
广告联系
登录
|
注册
搜索
搜索
本版
帖子
用户
用户名
Email
自动登录
找回密码
密码
登录
立即注册
全站首页
社区论坛
签到排行
用户排行
帖子
好友
道具
收藏
勋章
任务
淘帖
动态
日志
相册
分享
记录
留言板
广播
群组
门户
导读
排行榜
设置
我的收藏
退出
门户
房产
装修
汽车
婚嫁
资讯
活动
招聘
相亲
信息
租房
二手房
跳蚤
宠物
招聘
二手车
亲子
手机
社区
茶座
我要买房
找设计
装修家居
交友
职场
生活
网购
情感
皋城车友
找美食
谈婚论嫁
求医
兴趣
验房
走近
六安论坛
»
社区论坛
›
房产家居
›
家装建材
›
凤凰苑小区的布局图和效果图
1
2
/ 2 页
下一页
返回列表
发新帖
回复
阅读
993
回复
14
[商家活动]
凤凰苑小区的布局图和效果图
火
[复制链接]
刘俊雅
刘俊雅
当前离线
积分
347
IP卡
狗仔卡
发表于 2013-8-5 15:28
|
显示全部楼层
|
阅读模式
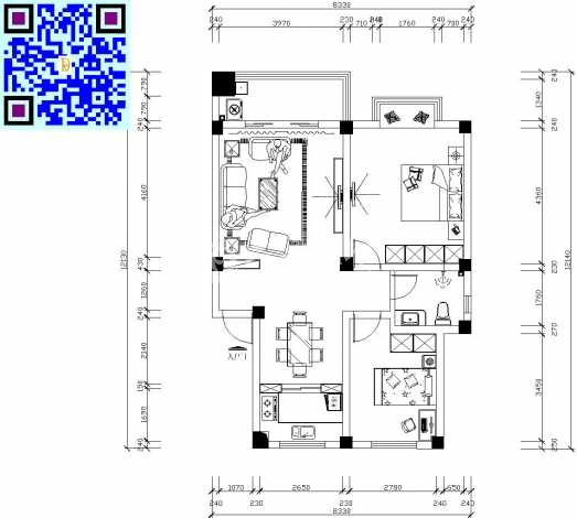
安徽省紫金都装饰公司在凤凰苑举办了一场装修户外活动,本活动主要是针对凤凰苑小区各住户的装潢问题,我公司专业的设计师专门为凤凰苑的各种
户型
做了平面布局图和效果图。不一样的户型,我们给您设计不同的风格。
现在装修,还有主材优惠活动,所有品牌主材打三到五折,包括:瓷砖,卫浴,吊顶等等。品牌多,价格低。您的主材任您挑选。
以下是我们公司对凤凰苑小区做出的布局图和效果图,供您参考。
无论您是否装修,紫金都装饰都将竭诚为您服务!
祝您生活愉快,身体健康,工作顺利!
联系电话:18326352631 0564--3321801
咨询QQ:1138036662 2669333039
联系人:刘俊雅
官网:www.zijindu.com
网址:
www.lazjd.com
地址:
六安
市皖西路新都会1号公馆501/1701室
六安论坛
回复
使用道具
举报
提升卡
置顶卡
沉默卡
喧嚣卡
变色卡
千斤顶
显身卡
刘俊雅
刘俊雅
当前离线
积分
347
IP卡
狗仔卡
楼主
|
发表于 2013-8-5 15:30
|
显示全部楼层
六安论坛
回复
鲜花
臭蛋
使用道具
举报
显身卡
刘俊雅
刘俊雅
当前离线
积分
347
IP卡
狗仔卡
楼主
|
发表于 2013-8-5 15:31
|
显示全部楼层
六安论坛
回复
鲜花
臭蛋
使用道具
举报
显身卡
刘俊雅
刘俊雅
当前离线
积分
347
IP卡
狗仔卡
楼主
|
发表于 2013-8-5 15:32
|
显示全部楼层
六安论坛
回复
鲜花
臭蛋
使用道具
举报
显身卡
六安紫金都装饰
六安紫金都装饰
当前离线
积分
143
IP卡
狗仔卡
发表于 2013-8-7 17:27
|
显示全部楼层
六安论坛
回复
鲜花
臭蛋
使用道具
举报
显身卡
紫金都
紫金都
当前离线
积分
325
IP卡
狗仔卡
发表于 2013-8-8 08:28
|
显示全部楼层
六安论坛
回复
鲜花
臭蛋
使用道具
举报
显身卡
刘俊雅
刘俊雅
当前离线
积分
347
IP卡
狗仔卡
楼主
|
发表于 2013-8-9 17:46
|
显示全部楼层
{:1039:}{:1039:}{:1039:}{:1039:}{:1039:}{:1039:}{:1039:}
六安论坛
回复
鲜花
臭蛋
使用道具
举报
显身卡
刘俊雅
刘俊雅
当前离线
积分
347
IP卡
狗仔卡
楼主
|
发表于 2013-8-13 08:27
|
显示全部楼层
{:1022:}{:1022:}{:1022:}{:1022:}{:1022:}
六安论坛
回复
鲜花
臭蛋
使用道具
举报
显身卡
刘俊雅
刘俊雅
当前离线
积分
347
IP卡
狗仔卡
楼主
|
发表于 2013-8-15 08:33
|
显示全部楼层
{:1022:}{:1022:}{:1022:}{:1022:}
六安论坛
回复
鲜花
臭蛋
使用道具
举报
显身卡
刘俊雅
刘俊雅
当前离线
积分
347
IP卡
狗仔卡
楼主
|
发表于 2013-8-15 16:39
|
显示全部楼层
{:1022:}{:1022:}{:1022:}{:1022:}
六安论坛
回复
鲜花
臭蛋
使用道具
举报
显身卡
下一页 »
1
2
/ 2 页
下一页
返回列表
发新帖
回复
登录
|
注册
高级模式
B
Color
Image
Link
Quote
Code
Smilies
您需要登录后才可以回帖
登录
|
立即注册
本版积分规则
发表回复
回帖并转播
回帖后跳转到最后一页
浏览过的版块
皋城美食
六安百态
侵权举报:本页面所涉内容为用户发表并上传,相应的法律责任由用户自行承担;本网站仅提供存储服务;如存在侵权问题,请权利人与本网站联系删除!举报微信号:
点击查看